︎
BESPOKE OFFICE
Proyectos
+
Albarracín 34
GenesisCare Málaga
GenesisCare Radioterapia
Miranza Málaga
Miranza Palma
RHGR Madrid
Ontier México
Ontier Global
Circus by B. Finat
Circus by Borja G. Finat
Enagás Pirámides
42 Fundación Telefónica
IC-10
Casa O’Maille
Galería
Información
Contacto
+
︎
︎
︎
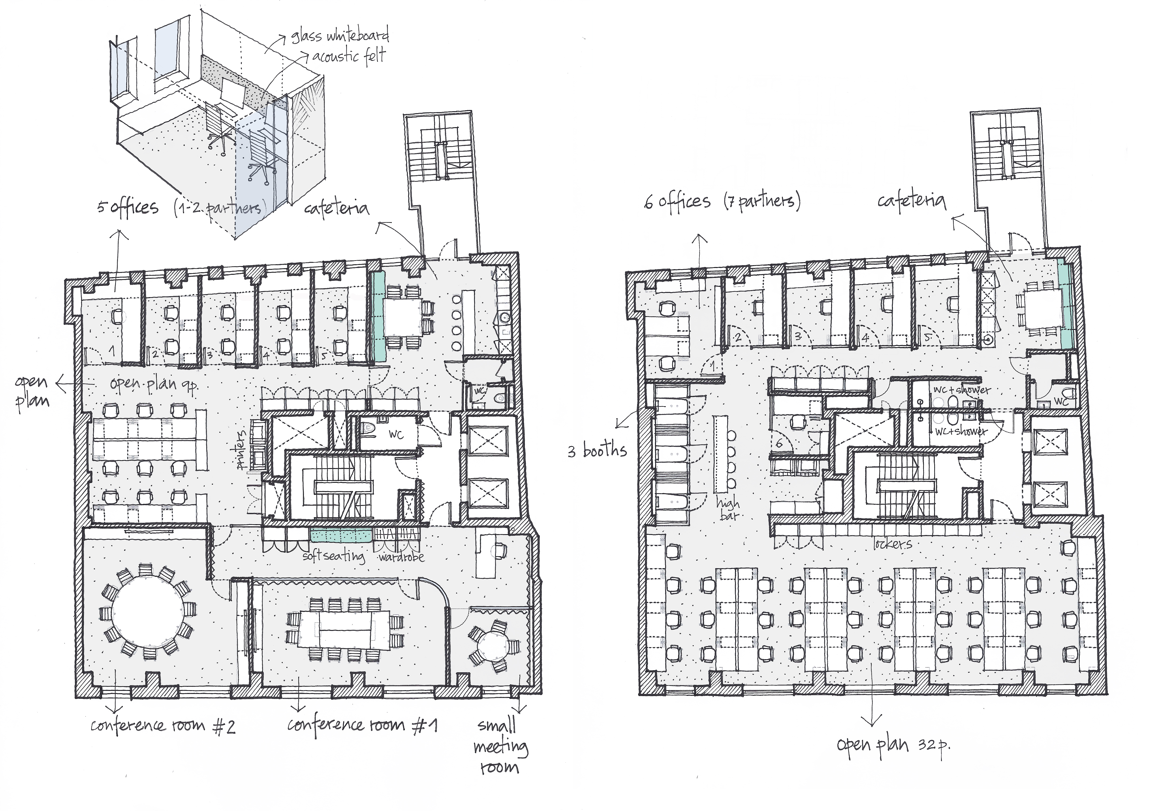
ONTIER
LONDRES
ONTIER
PASEO DE COLÓN, SEVILLA
ONTIER
ROMA
ONTIER
OVIEDO
ONTIER
SAN FERNANDO, SEVILLA
© Bespoke Office 2023 ·
Política de privacidad
Desarrollado por mondoestudio.es
Financiado por el Programa KIT Digital.
Plan de Recuperación, Transformación y Resiliencia de España "Next Generation EU".